BioDesign Connect je projekt koji razvija suvremene edukativne sadržaje i prati stvarne potrebe arhitektonske i dizajnerske struke. Upravo iz tog razloga, razvijeni su tehnički priručnici i certifikacijski programi kako bi se ojačale stručne kompetencije arhitekata i projektanata području održive i bio-arhitekture.
Razvijeni edukativni sadržaji utemeljeni su na europskim standardima, aktualnim zakonima, direktivama i regulativama te provjerenim praksama. Uz pomoć stručnjaka osmišljeni su da budu primjenjivi u realnim projektima i u različitim regionalnim i tradicijskim okolnostima tri zemlje: Hrvatske, Bosne i Hercegovine i Crne Gore. Kroz kombinaciju teorijskih znanja, studija slučaja, interaktivnih zadataka i digitalnih alata, arhitektima i projektantima se donosi dublje razumijevanje odnosa između materijala, energije, prostora i dobrobiti korisnika.
BioDesign Connect stavlja edukaciju u središte zelene tranzicije graditeljskog sektora, prepoznajući znanje kao ključni alat za promjenu prakse. Projekt time doprinosi stvaranju nove generacije stručnjaka koji su spremni odgovoriti na izazove održive izgradnje.
Projekt se provodi u okviru pilot projekta EmBRACE kojim se financira suradnja mikro i malih poduzeća u okviru Interreg VI-A IPA Programa Hrvatska – Bosna i Hercegovina – Crna Gora 2021. – 2027. s ciljem poboljšanja konkurentnosti poduzeća u pograničnom području.
Mountain Whisper & Forest Ridge - arhitektura u dijalogu s planinom
Planinske kućice „zaglavljenje“ između Prenja i Čvrsnice istovremeno su blagoslovljene prekrasnim vizurama kojima su okružene. Izazovno je projektirati kuću koja će istodobno biti „zatvorena“ kako bi osigurala zaštitu od surovih vremenskih prilika, ali i potpuno „otvorena“ kako bi komunicirala s okolinom, uhvatila sunce i svu ljepotu pogleda na prekrasne pejzaže u kojima su smještene. Nadalje, postavlja se pitanje kako na relativno sagledivom prostoru projektirati veći broj kuća koje su istodobno slične, a ipak potpuno različite, kako bi se udovoljilo zahtjevu investitora za posebnom i prepoznatljivom kućom.
Planinska kućica MOUNTAIN WHISPER
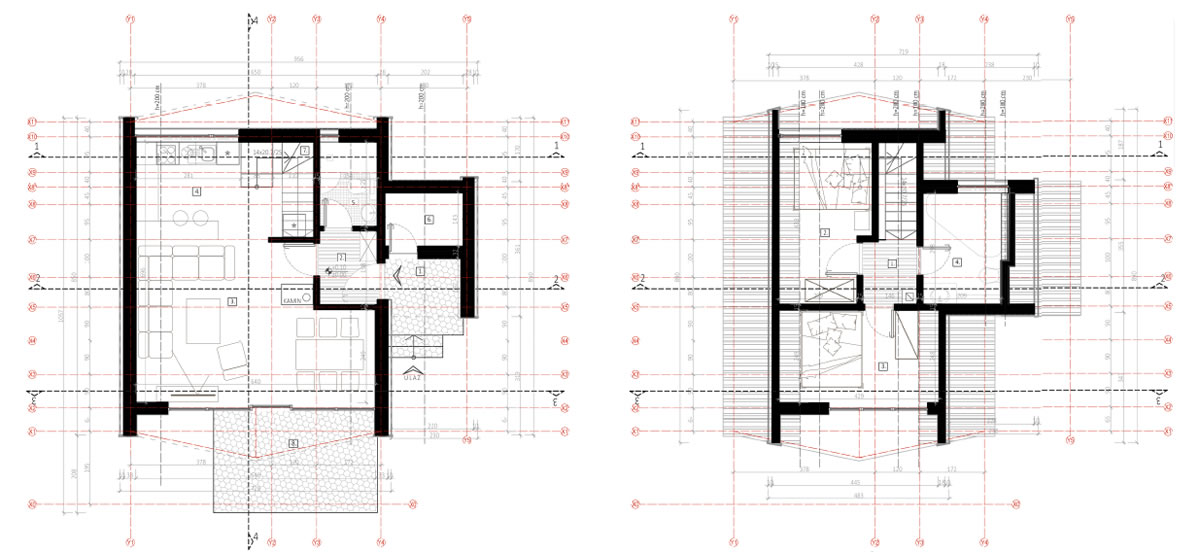
Tlocrt prizemlje/prvi kat
Presjek
Mountain Whisper
Mountain Whisper
Planinska kućica Forest Ridge
Presjek
Tlocrt prizemlje/prvi kat/potkrovlje
Forest Ridge
Forest Ridge
PROJEKTANT: Lamija Plecić ba.ing.arh.



