



- MATTHEW SOLUTIONS d.o.o.
-
VIŠE NA STRANICAMA PRODAVAČA / PROIZVOĐAČA
- Pogledajte cijenu
- Tehnički opis gradnje
Zanima li vas više informacija, cijena ili popust, pošaljite upit ili kontaktirajte tvrtku.
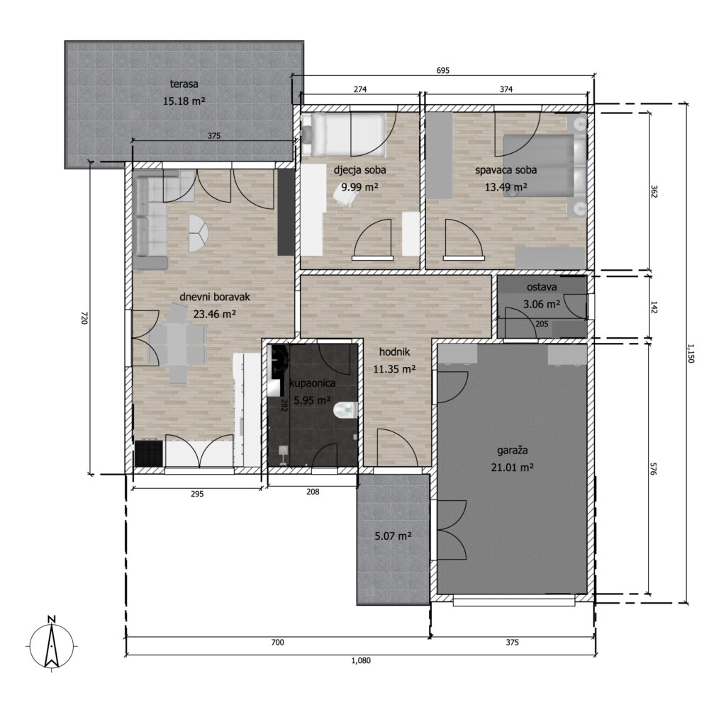
Futuristička kuća Dalia 129 m2 je suvremenog dizajna, projektirana kao trosobni stan većih površina prostorija i garažom kao sastavnim dijelom. Prostorne cjeline se izdvajaju kao dnevni, spavaći prostor i garažni dio s kotlarnicom. Naglašeni dnevni boravak se produžava na natkrivenu terasu čiji komfor može povećati nenatkriveni plato. Spavaći dio je hodnikom odvojen od dnevnog boravka u mirnijoj orijentaciji prostora. Izbor različitih boja fasade za pojedine dijelove naglašavaju atraktivni izgled ove kuće.
Klikom na linkove više možete saznati cijenu ovisno o fazama izgrađenosti ili za opciju ključ u ruke, te pogledati materijale koji se koriste kod gradnje.
Za sve dodatne informacije pošaljite upit.
