- MATTHEW SOLUTIONS d.o.o.
-
VIŠE NA STRANICAMA PRODAVAČA / PROIZVOĐAČA
- Pogledajte cijenu
- Tehnički opis gradnje
Zanima li vas više informacija, cijena ili popust, pošaljite upit ili kontaktirajte tvrtku.
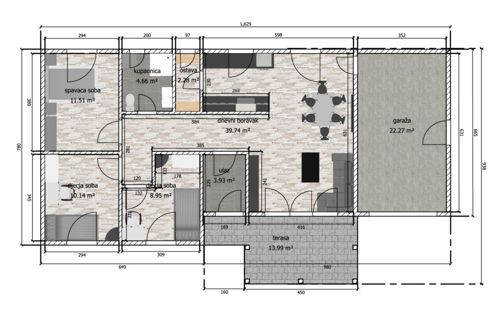
Moderna kuća Daria je suvremenog dizajna i isprojektirana je kao četverosobni stan većih površina prostorija. Zadovoljava svojim izgledom i funkcionalnošću ispunjava sve kriterije obiteljske kuće. Prostrani dnevni boravak u središnjem djelu, koji se širi na natkrivenu terasu, odvaja dio sa sobama i garažom. Sobe imaju pristup posebnoj kupaonici, a gostinjski toalet je bliži dnevnom boravku. Prostorno odvojena kuhinja je otvorena prema blagovaonici i komunicirano povezana s hodnikom. Viševodni krov s izdvojenim djelom za natkrivanje terase daje kući upečatljiv izgled.
Klikom na linkove više možete saznati cijenu ovisno o fazama izgrađenosti ili za opciju ključ u ruke, te pogledati materijale koji se koriste kod gradnje.
Za sve dodatne informacije pošaljite upit.


